ワンチームで作り上げた、テレビドラマのような世界観|インタビュー

「息子と同い歳くらいの女性営業スタッフがきた」という第一印象から始まったK様のリノベーション。
クジラスタッフからの問いかけに真面目に取り組んでいるうちに、ご自身の”好き”はとあるテレビドラマの世界観に影響を受けていたことに気づきました。
憧れの空間を目指して、ひとつずつ丁寧に決めていったリノベーションヒストリーをクジラスタッフと一緒に振り返ります。
▼今回のPJメンバー
施主様:K様
クジラ営業ディレクター:三橋
クジラデザイナー:菅原
クジラ施工管理:清水
目次
開かずの扉?
三橋:今日はよろしくお願いいたします。いろいろと思い出しながら、お話を伺えたらと思います。
−元々はいわゆる転勤族だったと伺ったのですが、やはり引っ越しや住まいに対するストレスは大きかったのでしょうか?
K様:転勤のスパンが短ければ、引っ越し自体にストレスはありませんでした。
そのたびに不要なものを整理できていたので、住み替えも比較的スムーズだったと思います。
このマンションに住み始めてからは10年ほど。引っ越しをしていない分、物が少しずつ溜まっていきました。
床がカーペットだったこともあり掃除がしづらく、子どもが小さい頃は張り替えることもできなかったため、部屋はどんどん手狭に。「一度片付けたい」と思いながらも、ずっと扉を閉めたままでした。
当初は、リノベーションよりも引っ越しを考えていました。
私自身もそうでしたし、主人も「手を入れるなら引っ越した方がいい」と考えていたと思います。

−そこから、どのようにリノベーションという選択肢に辿り着いたのでしょうか?
K様:まずは新築物件を見に行きましたが、想像以上に価格が高くて。
もう少し市内で中古物件を購入する案もありましたが、私自身がその暮らしをイメージできませんでした。田舎でのんびりする暮らしがいいなと、主人とも話をしていたので、「それなら、今の住まいをリノベーションしよう」という話に落ち着いた、という感じです。
−クジラはどのように見つけられたのでしょうか?
K様:Instagramで探して何件か見ていたんですが、一番最初にクジラさんに連絡して、三橋さんが来られた、という流れです。
三橋さんを見て、「オシャレな提案をしてくれそう」と思いつつ、「オシャレなものを作ったら、予算的に高くなりそう」とも思いました。
「他社にも相見積もりを依頼しようと思う」と伝えた上で、クジラさんの金額やアピールポイントを聞くと、
「安くはないが、(デザイン重視の会社と比べると)高くもない」
「営業ディレクター、デザイナー、施工管理とお客様でワンチームになって作る」ということが分かって。
友人が新築で家を建てたときに、「図面はできているけど、現場に行くと話が伝わっていない」「大工さんとのやりとりがうまくいっていない」といった話も聞いていたので、ワンチームでやれるんだったらいいな、と思いました。結局、相見積もりは取らずに、三橋さんに頼むことにしました。
三橋:ワンチームになる、という話まで覚えてくださっていて、本当に嬉しいです。
思い出したのは、大好きだったテレビドラマ
−今回のコーディネートには、テレビドラマが影響しているとお聞きしました。
K様:三橋さんから、「(引っ越し後も使用する)このソファとダイニングテーブルを使って、どのような雰囲気にしたいか、Pinterestを使って写真を探してみてください」と言われて。
いろいろ調べているうちに、「あ、私、あのドラマのインテリアが好きやった」というのを思い出して、もう一度見てみたら、「やっぱり好き」と思ったんです。
▼ドラマの世界観についてはこちら
こだわったのは、新旧の組み合わせ
−ソファとダイニングが本当に可愛いですね。
菅原:すでに使っていたソファやダイニングテーブル、椅子などは、そのまま使うことが決まっていました。
作りたい空間のテイストを目指して、そのまま持っていくもの、これから買うもの、内装デザインを、CGパースを見ながら整えていった感じです。
▼当時使用したパース(左)と施工写真(右)の比較

−壁の色も特徴的ですね。

菅原:壁紙のサンプルを、山のように集めました。
ドラマに出ていた色は、緑寄りの雰囲気なんですが、K様はもう少し水色寄りがお好きとのことで、緑と水色でせめぎ合うような打ち合わせでした。
三橋:アクセントで一面だけ色を入れることはよくありますが、全面に入れて大正解でしたよね。
K様:入れるなら絶対全面がいいと思いました。パースも作ってもらっていたし、あまり抵抗もなかったなと思います。好きな色に囲まれてすごく素敵、落ち着きます。
「(壁の)全面にするなら、どんなのがいいかな」とか、サンプルを取り寄せられるだけ取り寄せて、一枚一枚の質感や模様を確認していきました。
K様:床のサンプルも見ている時期だったので、壁紙のサンプルと重ねながら、たくさん話しましたね。
緑と水色の塩梅ですごく悩みましたけど、最終的には、ドラマに出てきた色よりも、自分の好きな水色寄りの色に落ち着きました。
−実際、決められた色に囲まれてみていかがですか?
K様:本当に素敵です。
チーム一丸となった感覚、そして完成
−収納計画や全体の雰囲気など、デザインと機能性を両立しているように感じました。
K様:これはもう、デザイナーの菅原さんのおかげです。やりたいことを箇条書きにしたメモをお渡ししたのですが、次の打ち合わせの際に、それが全部叶った図面が出てきて、本当に感動しました。あのときの間取りからほとんど変更がなくて、そのまま住まいが完成しました。
三橋:「間取り(動線)を決める」というのは、最初に来る大きな難関なんですよね。
工事期間にも予算にも大きく影響する中で、選択肢は無限大に出てきます。お客様が「どうしよう」と迷うポイントもたくさんある中で、今回のリノベーションでは、かなり早い段階で全員が「これだ!」と確信を持てたと思います。
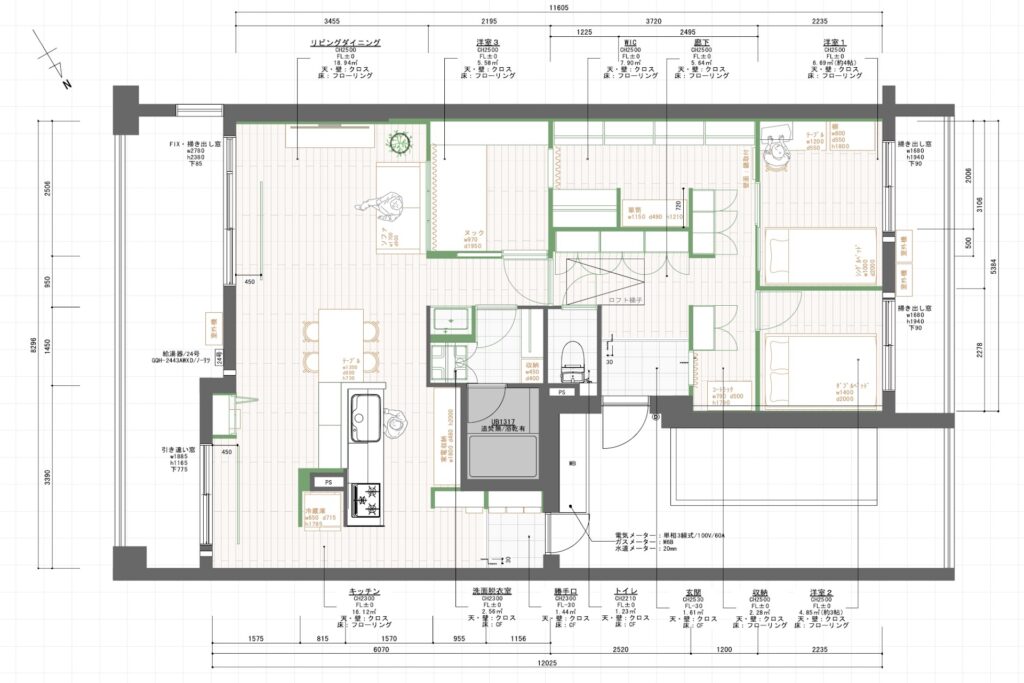
▼最初のゾーニング図面

▼最終図面(大きく変更になったのは玄関周りのみ)

−クジラスタッフの感覚が、K様に近かったのかもしれませんね。
K様:一緒だったというか、「同じ感覚で、同じものを見てくれていた」という印象でした。
伝えたことが、そのまま形になっている、そんな感覚でした。
リノベーション完成間際の検査の日に、同じマンション内に住んでいる方が「見せてほしい」と来られたんですけど、主人も「どうぞ見ていってください〜」といった感じで、クローゼットや内窓などを、嬉しそうに全部紹介していました(笑)
三橋:ご主人がルームツアーをしてくださっていましたよね(笑)そこまで嬉しそうにしてくださっていたのも光栄です。本日はインタビューのご協力、ありがとうございました。今後ともよろしくお願いいたします!

▼施工事例はこちら!





