- 大阪でリノベーションするならクジラ株式会社
- WORKS
- <76.48㎡>手放す未来も前提に。壊さず整える、身軽な部分リノベ【大阪市都島区】
中古マンション 部分リノベ・その他 <76.48㎡>手放す未来も前提に。壊さず整える、身軽な部分リノベ【大阪市都島区】 76.48㎡
CONCEPT 家族が暮らす住まいとは別に、ご主人が仕事と個人の時間を過ごす空間をリノベーション。
「自分らしい空間にしたい。でも、いずれ手放すなら無理なく戻せる状態が理想」
そんなお客様の言葉が、今回のリノベーションのポイントになりました。
今の心地よさを大切にしながら、将来の変化にも対応できるように。
大きく壊さず、作り込みすぎず、暮らしの可能性を広げることを目指しました。
BEFORE & AFTER
BEFORE
AFTER
BEFORE
AFTER
BEFORE
AFTER
BEFORE
AFTER空間の表情をつくる、ストーンシート
テレビまわりには、空間のアクセントとしてストーンシートを取り入れました。
素材感はありながら、主張しすぎない仕上がりに。
全体の落ち着いた雰囲気を保ちながら、ほどよいメリハリを生んでいます。
厚みも2-3ミリと薄く、タイルに比べて解体も容易。
素材感はしっかりと取り入れながら、将来的な変化にも対応しやすい仕様になっています。

使い方を変えて楽しむ小上がり
既存の和室は、そのまま活かして小上がりに。
くつろぎの場所としても、リビングの一部としてちょっと腰掛ける場所としても使えます。
一見シンプルですが、襖の出し入れや収納の取り方、可変性を残した上での強度の確保など、
壊さずに暮らしやすさを底上げする工夫が詰まっています。



INFORMATION
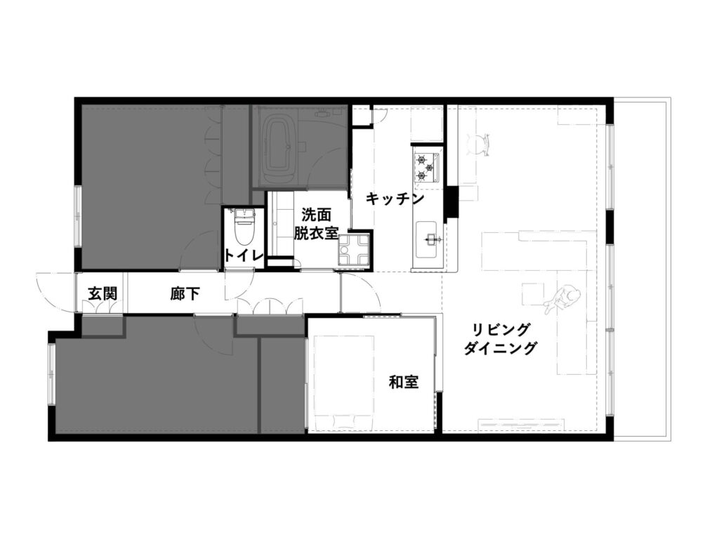
| エリア | 大阪市都島区 |
|---|---|
| 面積 | 76.48㎡ |
| 間取り | 3LDK |
| 種別 | 中古マンション |
| 構造 | 鉄骨鉄筋コンクリート造(SRC造) |
| 築年数 | 築15年 |
|---|---|
| 工期 | 約20日 |
| 参考費用 | 285万円(税別)+家具代 15万円(税別) |
| リノベーション内容 | 部分リノベーション |
| 担当メンバー | 柳川 映子 三橋 玲奈 森田 敏明 |
| エリア | 大阪市都島区 |
|---|---|
| 面積 | 76.48㎡ |
| 間取り | 3LDK |
| 種別 | 中古マンション |
| 構造 | 鉄骨鉄筋コンクリート造(SRC造) |
| 築年数 | 築15年 |
| 工期 | 約20日 |
| 参考費用 | 285万円(税別)+家具代 15万円(税別) |
| リノベーション内容 | 部分リノベーション |
| 担当メンバー | 柳川 映子 三橋 玲奈 森田 敏明 |






















無理なく元の形に戻せる「身軽さ」を残すこと。
好きなテイストは取り入れつつ、やり替えが難しくなる施工は避ける。
この線引きを軸に、間取りには手を加えず、仕上げ材の選び方や色の組み合わせで印象を整えました。
床は既存のフローリングの上から吸着タイプの床材を上貼り。
空間の表情を変えながら、元の床を傷つけにくい材料を採用しました。
無理なく元の形に戻せる「身軽さ」を残すこと。
好きなテイストは取り入れつつ、やり替えが難しくなる施工は避ける。
この線引きを軸に、間取りには手を加えず、仕上げ材の選び方や色の組み合わせで印象を整えました。
床は既存のフローリングの上から吸着タイプの床材を上貼り。
空間の表情を変えながら、元の床を傷つけにくい材料を採用しました。
無理なく元の形に戻せる「身軽さ」を残すこと。
好きなテイストは取り入れつつ、やり替えが難しくなる施工は避ける。
この線引きを軸に、間取りには手を加えず、仕上げ材の選び方や色の組み合わせで印象を整えました。
床は既存のフローリングの上から吸着タイプの床材を上貼り。
空間の表情を変えながら、元の床を傷つけにくい材料を採用しました。