- 大阪でリノベーションするならクジラ株式会社
- WORKS
- 布施の商店街を望む、まちの特等席。光あふれるメゾネットステイ -SEKAI HOTEL Osaka Fuse-【東大阪】
オフィス・店舗 布施の商店街を望む、まちの特等席。光あふれるメゾネットステイ -SEKAI HOTEL Osaka Fuse-【東大阪】 約60㎡
CONCEPT 布施のまち最大の商店街に、SEKAI HOTEL Fuse の新客室がオープン。
2階のリビングの窓からは、この客室でしか味わえない「商店街ビュー」が広がります。
古き良きまちのリアルな日常を、ホテルの客室から一望できる特等席のようなお部屋です。
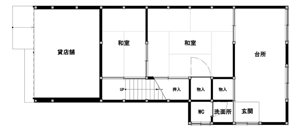
BEFORE & AFTER
BEFORE
AFTER
BEFORE
AFTER
BEFORE
AFTER
BEFORE
AFTER
BEFORE
AFTER空間に広がりとリズムをもたらすカラーフェンス
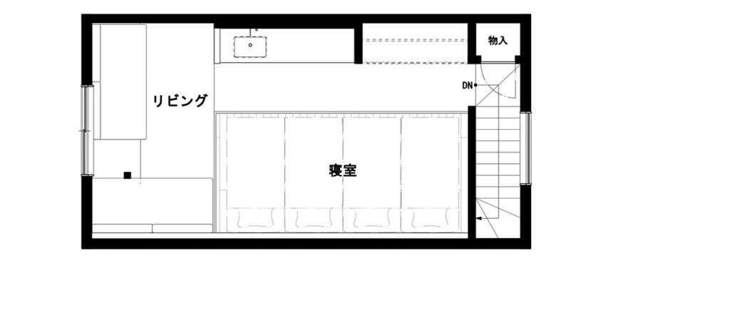
1階に水まわり、2階に宿泊スペースを配したメゾネットタイプのお部屋。
階段へと続く廊下にはアクセントとしてアースグリーンのフェンスを設置し、階段の先まで視線が抜ける設計に。
コンパクトな1階空間にも、ほどよい遊び心と彩りを添えています。

空間を引き立てるシアーカーテン
収納スペースには透け感のあるシアーカーテンを採用。
お部屋全体の素材や色に調和し、軽やかで心地よい雰囲気を演出しています。






























SEKAI HOTEL Fuse の客室の中でも数少ない商店街ビューのお部屋です。
もし泊まれたならとってもラッキー。
にぎわう商店街の景色を眺めながら、ちょっと特別な時間を過ごしてみませんか?
SEKAI HOTEL Fuse の客室の中でも数少ない商店街ビューのお部屋です。
もし泊まれたならとってもラッキー。
にぎわう商店街の景色を眺めながら、ちょっと特別な時間を過ごしてみませんか?
SEKAI HOTEL Fuse の客室の中でも数少ない商店街ビューのお部屋です。
もし泊まれたならとってもラッキー。
にぎわう商店街の景色を眺めながら、ちょっと特別な時間を過ごしてみませんか?
SEKAI HOTEL Fuse の客室の中でも数少ない商店街ビューのお部屋です。
もし泊まれたならとってもラッキー。
にぎわう商店街の景色を眺めながら、ちょっと特別な時間を過ごしてみませんか?